ГлавнаяГотовый арендный бизнес — Новая ул., 35

Новая ул., 35,
567.00 м2

62 000 000 руб.

109347 руб./м2

Следить за ценой


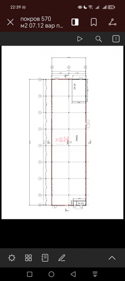
Площадь: 567.00 м2

Окупаемость: по запросу


Городской округ Чехов. Деревня покров. Коттеджный поселок, вдоль трассы. Площадь земли 19,46 сот., собственность. Кадастровая стоимость 4,5,млн. Электричество 150 кВт, вода своя скважина, газ , септик. Аренда тор Х-5, аренда 565 000 руб. в месяц, РТО-4,2%. Плюсом идет 40м2 свободных , с отдельным входом, арендатор Валдберис. Платит сейчас 56 000 руб. + коммунальные услуги . С июня будет платить 72 000 руб., прописано в договоре. Плюс индексация 3 % в год тоже прописано. Общая площадь здания 566,8 кв.м.
Преимущества объекта:
1. У Пятерочки прямой договор на электричество.
2. Земля и здание в собственности.
3. Природный газ.
4. Установлен дорогой септик ( который не требует постоянной откачки, только обслуживание раз в год)
5. Небольшая кадастровая стоимость участка 4,5 млн. т.е. будет небольшой земельный налог
6. Помещение полностью заполнено арендаторами Х5-565 000 руб. и Валдберис 56 000 руб. Со следующего года у Валдберис будет аренда 72 000 в месяц, это прописано в договоре + 3% индексация
7. В 2026-2027 году рядом планируется застройка крупного жилого района с многоквартирными домами!

Арт. 129214323

Специалист

Семерханова Неля

+7 (953) 653-88-88

или оставьте ваш номер,
и я перезвоню в течение 5 минут

Согласен с Политикой конфинденциальности и с Политикой оператора в отношении обработки персональных данных

Отправляя заявку вы соглашаетесь на обработку персональных данных

Похожие объекты

Посмотреть другие объявления в этой категории